REQUEST A TOUR If you would like to see this home without being there in person, select the "Virtual Tour" option and your agent will contact you to discuss available opportunities.
In-PersonVirtual Tour

$ 569,000
Est. payment /mo
Active
10305 County Road 51 Lexington, AL 35648
5.4 Acres Lot
UPDATED:
Key Details
Property Type Commercial
Sub Type Industrial
Listing Status Active
Purchase Type For Sale
MLS Listing ID 21864594
HOA Y/N No
Year Built 1981
Lot Size 5.400 Acres
Acres 5.4
Property Sub-Type Industrial
Source Valley MLS
Property Description
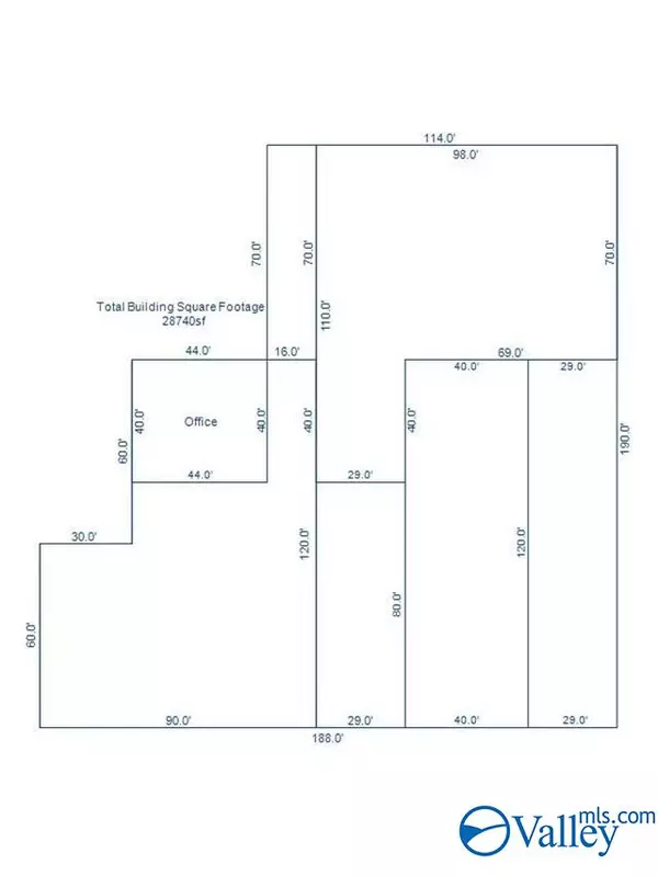
This 48K sq ft of warehouse in the North Alabama metroplex, 22 miles from Florence. Two buildings provide flexibility for a potential owner. Operate in one and rent the other, operate in both, or rent both out. Plenty of three phase power. Sewer to site. A variety of roof heights. 5.4 acres site allows for further expansion. Month to month tenants provide over $6,000.00 per month gross income. Leases can be converted to long term leases if desired.
Location
State AL
County Lauderdale
Direction From Downtown Florence, Take Hwy 72 East To Elgin. Left On 101 To Right On County Road 51. Property Will Be On The Right.
Interior
Heating Electric
Flooring Concrete
Fireplace No
Exterior
Roof Type Metal
Present Use Warehouse
Building
Foundation Slab
Sewer Public Sewer
Water Public
New Construction No
Others
Tax ID 0205153001011.000

Copyright
Based on information from North Alabama MLS.
Based on information from North Alabama MLS.
Listed by Park Properties





